Mechernich-Kallmuth

"Klausbrunnen"

freigelegt und rekonstruiert 1953 und 1957, vollständig erneuert 2013

ursprünglicher Beginn der Wasserleitung, bevor die Zuleitung aus dem Grünen Pütz gebaut wurde.

befund Zustand nach der Grabung (nach HABEREY)
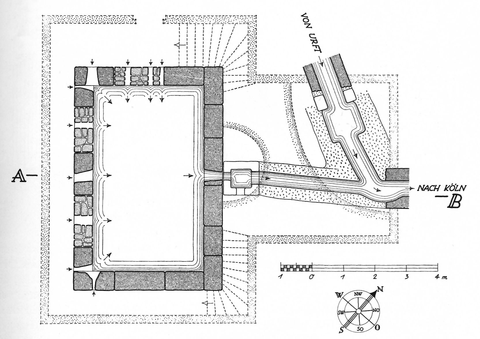
plan Grundriss (nach HABEREY)
schutzbau schutzbau schutzbau der Schutzbau 1979 und 2016
schutzbau schutzbau der Schutzbau unmittelbar vor der Vollendung 2013: das Dach ist aufgeständert, dadurch wird der Innenrnaum entlüftet - weniger/kein Moosbefall - und ein Einblick ist von aussen möglich.
becken

Fundament aus Tuffsteinquadern, Mauerkrone aus halbrunden Sandsteinquadern

Beckenmasse: 3,50 x 5,80 m; Leistung 300 - 500 m3 pro Tag

kallmuth becken

linke Hälfte der Brunnenstube: links: 2002 und rechts 2016

Der Brunnen ist 2002 - abgesehen von einer hohen Luftfeuchtigkeit - trocken.

2002 ist keine Feuchtigkeit erkennbar, 2016 steht Wasser.

kallmuth schieber Schieber im Ablauf 2004 und 2016
zulauf zulauf Zulauf aus "Grüner Pütz" 2016, im Wasser
ablauf ablauf Ablauf nach Eiserfey 2016, im Wasser


zurück © 2001 by nf revised 01.12.2019